機械設計を学び始めた方にとって、「バラシ図」「部品図」「組立図」「検討図」という用語は少し紛らわしく感じるかもしれません。これらはすべて設計プロセスの中で欠かせない図面ですが、それぞれ役割と使う目的が異なります。本記事では、初心者にも分かりやすく違いを解説します。
バラシ図(ばらしず)とは
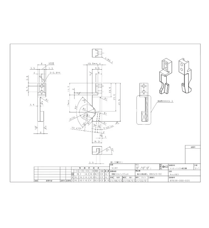
バラシ図は、製品を構成する部品を分解した状態で表現した図面です。各部品の配置や取り付け関係を視覚的に理解するために使われます。主に組立マニュアルや保守説明書で用いられ、部品同士のつながりを一目で確認できるのが特徴です。

部品図(ぶひんず)とは
部品図は、製品を構成する個々の部品を正確に描いた図面です。寸法、公差、材料、加工指示など製造に必要なすべての情報が記載されます。製造現場では、この図面を基に部品を加工し、品質を検証します。正確性と標準化が求められる、最も技術的な図面です。

組立図(くみたてず)とは
組立図は、複数の部品を組み合わせて完成品の構造を示す図面です。部品の配置関係、取付順序、動作確認などを目的に使用されます。部品番号(部品表)が添付されることも多く、製造・組立現場の基礎資料として重要な役割を果たします。

検討図(けんとうず)とは
検討図は、製品設計の初期段階で構造や形状を検討するための図面です。試作や設計レビューの際に使われ、アイデアを形にするための「思考ツール」として位置づけられます。まだ確定していない情報も含まれるため、製造には直接使用されません。

図面の使い分け早見表
| 図面の種類 | 主な目的 | 使用段階 |
|---|---|---|
| バラシ図 | 構成・順序の理解 | 組立・保守 |
| 部品図 | 正確な製造 | 加工・検査 |
| 組立図 | 全体構造の確認 | 設計・製造 |
| 検討図 | 設計アイデアの整理 | 初期設計 |
初心者の学び方ポイント
初心者はまず、組立図 → バラシ図 → 部品図の順で学ぶのがおすすめです。全体構造を理解してから個々の部品に進むことで、設計の流れを自然に把握できます。また、3Dモデルや実物を参照しながら図面を見ると、理解が格段に深まります。
よくある質問(FAQ)
Q1: バラシ図と組立図の違いは?
A: バラシ図は部品を分解して表示し、組立図は完成状態を示します。
Q2: 検討図は製造に使いますか?
A: いいえ。検討図は設計段階での構想・検討のみに使用されます。
Q3: 初心者はどの図面から学ぶべき?
A: 組立図 → バラシ図 → 部品図の順で学ぶと効率的です。
IDEA Groupのサポート
IDEA Groupは、日本品質のバラシ図・部品図作成をサポートします。
製造業や設計会社様のために、迅速かつ正確な図面作成をお手伝いします。
標準化された図面作成 – JIS準拠で高品質
自動化QCでスピードアップ – AI検証でミスを削減
日本語対応エンジニアチーム – 設計経験豊富なスタッフが対応
今すぐお問い合わせください!





















